PROPERTY DETAILS

105 - 62 Suncrest Boulevard,

Markham, Ontario L3T 7Y6

$2,250 Monthly
1+1
1
1
Virtual tour

Welcome home to Thornhill Towers - a luxurious 1+1 bedroom residence on the main floor, offering comfort and convenience at every turn. The versatile den with its own door makes a perfect second bedroom, while laminate floors add a sleek, modern touch throughout. Two underground lockers provide ample storage. A standout feature is the rare tandem parking space, allowing tenants to park two vehicles in one assigned spot - a unique and highly practical perk seldom found in condo living. Enjoy resort-style living with an indoor pool, sauna, party room, and round-the-clock security - all within minutes of parks, shops, restaurants, banks, and easy highway access via 404/407. (id:29237)

Property Details
MLS® Number N13017124
Property Type Single Family
Building Type Apartment
Community Name Commerce Valley
Title Condominium/Strata
Parking type Underground, Garage
Amenities Nearby Park, Place of Worship, Public Transit, Schools
Interested?

Contact us for more information.

Generating Captcha
Location
Building
Basement Type None
Bathrooms (Total) 1
Bedrooms - Above Grade 1
Bedrooms - Below Grade 1
Cooling Central air conditioning
Exterior Finish Concrete
Heating Fuel Natural gas
Heating Type Forced air
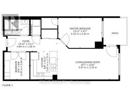
Rooms
Foyer 3.11 m x 1.46 m
Living room 6.09 m x 2.95 m
Dining room 6.09 m x 2.95 m
Kitchen 2.68 m x 2.61 m
Primary Bedroom 4.45 m x 2.91 m
Bathroom 2.34 m x 1.52 m
Den 2.61 m x 2.4 m
Powered by: REALTOR.ca
This REALTOR.ca listing content is owned and licensed by REALTOR® members of The Canadian Real Estate Association

The trademarks REALTOR®, REALTORS®, and the REALTOR® logo are controlled by The Canadian Real Estate Association (CREA) and identify real estate professionals who are members of CREA. The trademarks MLS®, Multiple Listing Service® and the associated logos are owned by The Canadian Real Estate Association (CREA) and identify the quality of services provided by real estate professionals who are members of CREA. The trademark DDF® is owned by The Canadian Real Estate Association (CREA) and identifies CREA's Data Distribution Facility (DDF®)


April 22 2026 03:47:24

Toronto Regional Real Estate Board

Zolo Realty

RealtyPress WordPress CREA DDF® Plugin