PROPERTY DETAILS

111 Dali Crescent,

Toronto, Ontario M1B 5Y3

$999,000
4
3
2
Virtual tour

Looking for a beautifully maintained home with privacy? This Reixach built home might be the one! No homes behind! Tucked into a quiet, family-friendly crescent in sought-after location. This home is ideal for growing families, professionals, or those looking to right-size without compromise. Step inside to a bright and inviting layout featuring spacious principal rooms filled with lots of natural light. The main floor flows seamlessly, making everyday living and entertaining effortless. The separate living & dining areas create the perfect backdrop for gatherings, while the well-appointed kitchen offers ample cabinetry, generous counter space, and the breakfast area overlooking the private backyard. Upstairs, you'll find generously sized bedrooms designed for both comfort and privacy. The primary suite provides a peaceful retreat with excellent closet space and a well-designed ensuite bath. Additional bedrooms are ideal for children, guests, or a dedicated home office.The finished lower level expands your living space plus abundant storage. Step outside to a private backyard oasis ideal for summer barbecues and relaxing evenings. Sit on the Sundeck and enjoy the privacy with no neighbours behind! The backyard offers space for children and pets while still providing room to entertain. Just minutes from Rouge Hill GO Station for an easy downtown commute, TTC routes, and quick access to Highway 401. Enjoy nearby waterfront trails and green space at Port Union Waterfront Park and the natural beauty of Rouge National Urban Park. Local shops, restaurants, schools, community centres, and everyday conveniences are all close at hand.This is a rare opportunity to enjoy quiet living while staying connected to transit, nature, and neighbourhood amenities - a home and lifestyle that truly checks all the boxes. (id:29237)

Property Details
MLS® Number E13032688
Property Type Single Family
Building Type House
Storeys 2
Community Name Rouge E11
Title Freehold
Land Size 40 x 100.1 FT
Parking type Attached Garage, Garage
Interested?

Contact us for more information.

Generating Captcha
Location
Building
Basement Development Finished
Basement Type N/A (Finished)
Bathrooms (Total) 3
Bedrooms - Above Grade 4
Cooling Central air conditioning
Exterior Finish Brick
Heating Fuel Natural gas
Heating Type Forced air
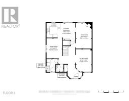
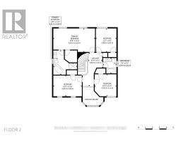
Rooms
Primary Bedroom 6.01 m x 3.41 m
Bedroom 2 3.38 m x 2.97 m
Bedroom 3 4.09 m x 3 m
Bedroom 4 3.18 m x 3.12 m
Recreational, Games room 9.63 m x 8.69 m
Kitchen 5.79 m x 3.38 m
Living room 5.13 m x 3.15 m
Dining room 4.06 m x 3.15 m
Family room 4.52 m x 3.15 m
Powered by: REALTOR.ca
This REALTOR.ca listing content is owned and licensed by REALTOR® members of The Canadian Real Estate Association

The trademarks REALTOR®, REALTORS®, and the REALTOR® logo are controlled by The Canadian Real Estate Association (CREA) and identify real estate professionals who are members of CREA. The trademarks MLS®, Multiple Listing Service® and the associated logos are owned by The Canadian Real Estate Association (CREA) and identify the quality of services provided by real estate professionals who are members of CREA. The trademark DDF® is owned by The Canadian Real Estate Association (CREA) and identifies CREA's Data Distribution Facility (DDF®)


April 26 2026 03:45:51

Toronto Regional Real Estate Board

RE/MAX Connect Realty

RealtyPress WordPress CREA DDF® Plugin