PROPERTY DETAILS

811 - 11 Superior Avenue,

Toronto, Ontario M8V 0A7

$569,900

Maintenance, Heat, Common Area Maintenance, Insurance, Water, Parking

$789.13 Monthly
1
1
1
Virtual tour

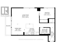
Stunning and unique! Large, airy and bright! This 1 bedroom, corner unit is 744 square feet (+balcony!) and features a completely open concept living space with stunning views. Working from home never felt this comfortable. An artist's haven! This unit is really nothing like the rest (*one of only 2 units in the building*). Upgrades throughout including luxury laminate flooring, large kitchen with quartz counters and oversize island, large windows with custom blinds, large balcony and includes owned parking and locker. This unit is west and north facing - with private exposure. Enjoy stunning sunsets and amazing views of the lake, the Lake Shore and the neighbourhood. Nestled right on the Lake Shore, but conveniently away from the chaos, discover the charm and character of Old Mimico. Built in 2015, the desirable quiet, low-rise boutique style building is a pleasure to call home. Building great amenities include rooftop terrace, gym, party room, concierge and visitor parking. Steps from the lake, Superior Park, transit, shops, restaurants, bars-every amenity imaginable with convenient grocery across the street. TTC at your door step and a short walk to Mimico GO Station. Easy Access to the Gardiner Expressway/ QEW. Explore miles of waterfront walking and cycling trails and much more! (id:29237)

Property Details
MLS® Number W13047952
Property Type Single Family
Building Type Apartment
Community Name Mimico
Title Condominium/Strata
Parking type Underground, Garage
Interested?

Contact us for more information.

Generating Captcha
Location
Building
Basement Type None
Bathrooms (Total) 1
Bedrooms - Above Grade 1
Cooling Central air conditioning
Exterior Finish Brick, Concrete
Heating Fuel Natural gas
Heating Type Forced air
Powered by: REALTOR.ca
This REALTOR.ca listing content is owned and licensed by REALTOR® members of The Canadian Real Estate Association

The trademarks REALTOR®, REALTORS®, and the REALTOR® logo are controlled by The Canadian Real Estate Association (CREA) and identify real estate professionals who are members of CREA. The trademarks MLS®, Multiple Listing Service® and the associated logos are owned by The Canadian Real Estate Association (CREA) and identify the quality of services provided by real estate professionals who are members of CREA. The trademark DDF® is owned by The Canadian Real Estate Association (CREA) and identifies CREA's Data Distribution Facility (DDF®)


April 27 2026 04:50:29

Toronto Regional Real Estate Board

RE/MAX Professionals Inc.

RealtyPress WordPress CREA DDF® Plugin